Lager/Produktion
Gerne auch mit Expansionspotential !
In verkehrsgünstiger Lage und guter Anbindung bieten wir Ihnen in unseren modernen und funktionellen Gebäuden die räumlichen Voraussetzungen für Ihren Unternehmenserfolg.
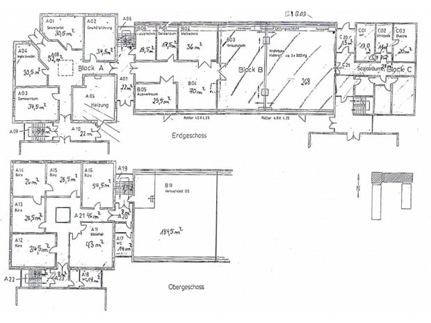
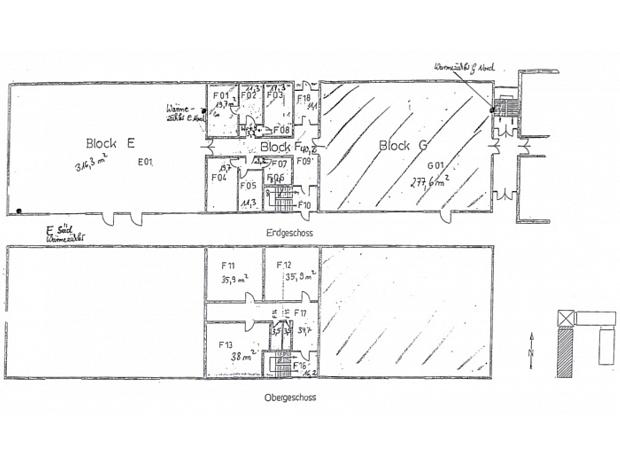
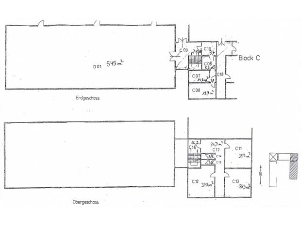
Auf insgesamt 5000 m² flexibel gestaltbarer Büro-, Produktions-, Labor- und Werkstattflächen bieten wir Ihnen zu attraktiven Konditionen Mieteinheiten von 36 - 545 m² mit guten Expansionsmöglichkeiten.
die wichtigsten Eckdaten:
- verkehrsgünstige Lage an B239 und L777
- durch LKW problemlos erreichbar
- große Rolltore zur Be- und Entladung
- Mietflächen von 36 bis 545 m²
- Parkplätze direkt am Haus
- ISDN/Netzwerk vorhanden
- DSL Breitbandanschluss
- strapazierfähiger Estrichboden










